
서울디자인재단 공고 제2023-42호
「서울새활용플라자 5층 레스토랑
사용·수익허가 사업자 선정」입찰 공고
재단법인 서울디자인재단은 서울새활용플라자 5층 레스토랑 사용·수익허가 사업자를 선정하고자 다음과 같이 공고합니다.
1. 입찰에 부치는 사항
가. 입찰목적: 「서울새활용플라자 5층 레스토랑」 사용·수익허가 사업자 선정 공고
나. 대상재산
시설명 | 위치 | 면적(m²) | 예정가격(원) | 업종 | ||
전용 | 공용 | 계 | ||||
5층 레스토랑 | 서울시 성동구 용답동 자동차시장길 49 | 288.52 | 255.65 | 544.17 | 59,499,570 (부가세포함) | 휴게음식점 |
- 예정가격은 부가세 포함 가격입니다.
- 임대면적은 공용면적을 포함한 면적이며 실면적과 다소 상이할 수 있습니다.
- 예정가격은 최초 1년간 사용료 산정을 위한 기초가격입니다.
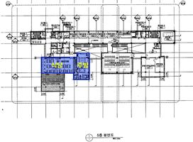
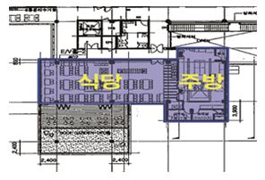
5층 평면도 | 레스토랑 평면도 |
|
|
- 해당 공간은 현장 확인 후 사용 목적(식사 등을 판매하는 레스토랑)을 고려하여 입찰하시기 바랍니다.(사용 목적 외 타 용도로 이용 시 입찰 무효)
- 낙찰자의 운영수익에 대하여 우리 서울특별시와 (재)서울디자인재단은 보장책임이 없으므로, 응찰자는 시장분석 및 현장답사 등 사전 조사를 충분히 검토하시고, 낙찰자의 레스토랑 운영 손익에 대한 모든 책임은 응찰자 본인에게 있으니 모든 사항을 신중히 검토하고 응찰하여 주시기 바랍니다.
- 내부 현장 확인이 필요할 경우 입찰 담당자(02-2153-0428)에게 사전 문의 바랍니다.
다. 입찰 일정
입찰서 제출 및 입찰 보증금 납부기간 | 개찰일시 | 개찰장소 | 입찰서 제출처 |
2023. 4. 5.(수) 10:00 ~ 2023. 4. 13.(목) 16:00 | 2023. 4. 14.(금) 10:00 | (재)서울디자인재단 입찰집행관 PC | 전자자산처분시스템 (온비드) |
라. 사용·수익허가 기간
- 사용·수익허가 기간은 계약체결일로부터 3년입니다.
※ 사용·수익허가 기간은 계약종료일 이전에 서울특별시-(재)서울디자인재단의 위‧수탁 협약기간이 연장되거나 이에 준하는 조치가 서울특별시로부터 인정되는 경우에 한하며, 그렇지 않은 경우는 서울특별시-(재)서울디자인재단 위‧수탁기간 종료일인 2025년 12월 31일로 합니다.
※ 1회에 한해 중간평가에 의해 2년 이내 연장 가능합니다. 연장 기간까지 포함한 최대 사용‧수익허가 기간은 계약일로부터 최대 5년 이내입니다.(⸢서울특별시 서울새활용플라자 설치 및 운영에 관한 조례⸥ 제8조)
※ 사용목적물은 공유재산법의 적용을 받는 행정재산으로 상가건물 임대차 보호법의 임대차 갱신요구권이 적용되지 않습니다.
- 입점 관련 시설 공사기간은 사용·수익허가 기간에 포함됩니다.
- 내부 인테리어 등 영업 관련 시설은 사용자가 부담하며 계약서, 건축법, 소방법 및 기타 모든 관계 법령에 적합하게 설치해야 합니다.(전기, 도시가스 포함)
- 제소전 화해조서(의무사항 미이행시 계약해지 사유가 됨) 체결해야 합니다.
- 낙찰 확정 후 계약은 2주일 이내 진행 예정이며, 영업시작일은 재단과 협의하여 조정할 수 있습니다.
마. 사용료 산정
- 사용료는 최고 입찰가(낙찰가)로 부과합니다.
- 예정가격은 연간 사용료 산정을 위한 기초가격으로 예정가격 이상으로 입찰한 1개 이상의 유효한 입찰이 있는 경우에 최고가격으로 응찰한 자를 낙찰자로 합니다. (⸢공유재산 및 물품 관리법 시행령⸥ 제13조 제2항)
- 예정가격은 부가세 포함 가격이며, 관리비(일반관리비+실사용 유틸리티 비용)는 별도 부과 합니다.
- 입찰참가 시 시설물 및 인테리어 설치, 전기 및 도시가스 인입비용 등을 고려하여 입찰하시기 바라오며, 시설 투자 금액은 반환하지 않습니다.
- 사용료 외 보증금은 사용료 대비 약 30%이며(계약 종료 후 환급), 보증보험 대체하여 납부 가능합니다.
- 연간 사용료는 고정이 아니며 2차 년도 이후 사용료는 ⸢공유재산 및 물품관리법 시행령⸥ 제14조와 제31조 제3항에 따라 매 연도별 산정 부과합니다.(사용료 산정 부과는 1년 단위이며, 2차년도 사용료는 당해연도 사용개시 30일 이전에 납부)
바. 주요 허가 조건: 세부내용은 별도 첨부된 “사용‧수익허가 일반 및 특수조건” 참조
사. 입찰방식: 일반경쟁입찰, 최고가 낙찰제(예정가격 이상)
2. 대상 재산에 대한 세부사항
가. 공간 개요
공간 위치 |
|
- 위치: 서울시 성동구 용답동 자동차시장길 49 (5층)
- 면적: 전용면적 288.52㎡
나. 공간 현황
공간 | 전용면적 288.52㎡ | |
세부규격 | 가로 | 26.7m |
세로 | 15m(긴 면) | |
높이 | 4.2m | |
다. 시설 현황
구분 | 내용 | |
건축 | 바닥 | THK3에폭시라이닝 |
천장 | THK5단열뿜칠 | |
천장고 | 4.2M | |
벽체 | 콘크리트면처리(친환경수성페인트) | |
급배수, 가스 | 급배수 | 유 |
가스 | 유 | |
통신, A/V | 전기 | 천정형 등기구 : 78EA |
방송 | 전관 방송 (스피커 6ea) | |
통신 | CCTV, 출입통제 | |
기계, 소방 | 냉난방 | 중앙 냉난방 (상부) |
소방 | 천정 스프링 쿨러 | |
옥내소화전 | 벽부착, 1개 | |
제연설비 | 하부급기 상부배기 | |
자동화재 탐지설비 | 감지기, 발신기, 중계기 | |
가구 및 집기 | 가구 | 테이블 12개, 의자 48개 |
집기 | 에어커튼, 발판소독기, 자동릴호스,손소독기,손세정대,조립형STS팬랙1800,수전,L형 운반차, 전기 식기소독 보관고, 조립형STS팬랙1250 3단, 랙보관선반, 콤비스티머 하부받침대, 보존식 냉동고, 작업대 천장, 냉온UV식수시스템, 수저회수차, 2-조 세정대, 작업대 하부선반, 음식보온장, 음식보냉장, 나이프 레이스 스틸레이저, 울트라 바이올렛 멀티 스틸레이저, 냉동냉장고, 가스자동취반기, 콤비스티머, 가스회전식국솥 400인용 스텐, 스텐레스 월 마감, 자동점화형 나즌 가스렌지, 하부선반, 캔틸레버시스템, 브릿지부분 장비, 스탠딩 모듈, 플로어픽싱 풋, 행잉아이템, 양념운반카, 샐러드 바, 국보온 운반차, 발판소독기, 에어커튼, 수저식판배분대, 자율배식대, 잔반통, 잔반. 세척준비대, 콤펙트 컨베어 시스템. 식기건조대, 급배기후드, 배기후드, (붙임6 참조) | |
- 테라스 방면 폴딩도어로 개방감이 있고, 남향이어서 채광이 용이하며 기본 주방기구와 설비, 인테리어, 가구가 갖추어져 있음
- 서울하수도과학관, 중랑물재생센터, 서울교통공사 등이 인접해 있고, 원경으로 동쪽 아차산에서부터 오른쪽 방향으로 잠실, 성수동, 옥수동으로 이어지는 조망이 우수
레스토랑 전경 |
3. 입찰 참가자격: 다음 조건을 모두 충족하는 자
가. 「지방자치단체를 당사자로 하는 계약에 관한 법률 시행령」 제13조(경쟁입찰의 참가자격) 및 동법 시행규칙 제14조(입찰참가자격요건의 증명)의 자격을 갖춘 자 또는 동법 시행령 제92조(부정당업자의 입찰참가자격 제한)에 해당되지 않는 자
나. 「한국자산관리공사 전자자산처분시스템 입찰 참가 준수 규칙」 제4조(입찰 참가자 자격 제한)의 사유에 해당되지 않는 자
다. “온비드”에 이용자(회원) 등록을 하고 공인인증기관에서 발급받은 인증서로 온비드 시스템에 등록을 필한 일반/법인사업자 또는 개인(미등록 기업은 온비드에 홈페이지를 통해 입찰 참가 전에 이용자(회원) 등록을 완료하여야 함)
라. 「식품위생법」제38조(영업허가 등의 제한) 규정에 저촉되지 아니한 자
마. 직접 사용할 자로 입찰 조건 및 허가 조건을 수락한 자(전대 불가)
바. 제안서 제출일 현재 국세, 지방세 및 4대 보험료 체납이 없는 자
사. 공고일 기준으로 등록취소, 휴업, 폐업, 부정당업체 지정 및 자격정지 등 관련 규정에 의한 조치된 자는 입찰에 참가할 수 없음
아. 입찰일(낙찰자는 계약체결일부터 계약종료일)까지 당해자격을 유지하여야함.
자. 미자격자가 고의로 입찰에 참가할 시에는 「지방자치단체를 당사자로 하는 계약법에 관한 법률 시행령」 제92조의 규정에 따라 부정당업체로 제재 할 수 있음.
※ 이하 관련 법령 검색은 법제처 홈페이지(http://www.moleg.go.kr) 참조
※ 입찰 참가자격에 결격 사유가 있다고 판명될 시에는 즉시 사용·수익허가(계약) 취소
4. 입찰 방법
가. 본 입찰은 온비드를 이용한 전자입찰방식으로만 진행합니다.(http://www.onbid.co.kr)
나. 입찰서 제출은 "온비드" 입찰화면에서 전자입찰서를 "온비드"로 송신하는 방법으로 하되,입찰서의 제출시점은 입찰서가 "온비드" 상에 접수된 시점을 기준으로 합니다.
다. 입찰서는 입찰마감 시간까지 제출하여야 하며, 입찰서 제출 후 화면 상 응답 메시지를 확인하는 등의 방법으로 본인의 입찰서가 이상 없이 제출되었음을 직접 확인하여야 합니다.
라. 본 입찰에 있어 2인 이상의 공동입찰 및 대리입찰은 불가능하며, 한번 제출된 입찰서는 변경 또는 취소가 불가능합니다. 또한 1인 1건의 입찰을 진행할 수 있으므로 여러 물건을 동시에 입찰하면 무효처리가 되므로 이점 유의하여 주시기 바랍니다.
5. 입찰보증금 및 수수료 납부
가. 입찰보증금(입찰금액의 5/100)은 현금 또는 입금창구 은행이 발행한 수표로 전자입찰 마감시간까지 “온비드” 입찰화면에서 입찰자에게 부여된 보증금 납부계좌에 납부하여야 하며, 입찰 보증금 납부에 따른 수수료는 입찰자가 부담합니다.
나. 입찰보증금 납부는 “온비드”에서 입찰서 제출 시 명기된 보증금 전액을 한 번에 납부(분할납부 불가)하여야 하며, 입찰보증금을 창구에서 수표로 입금하는 경우에는 창구은행이 발행한 수표만 입금 가능합니다.
다. 다음의 경우 정상적으로 입금처리가 되지 않는 사항임을 알려드립니다.
- 입찰보증금을 입금창구 은행 이외의 타 은행이 발행한 수표로 입금하는 경우
- 입찰보증금보다 적게 입금하는 경우
- 입찰보증금을 분할하여 입금하는 경우
※ 전자 입찰서 제출 및 입찰보증금 납부 일시까지 지정계좌에 미입금 시에는 입찰이 무효로 처리됩니다.
라. 낙찰되지 않은 자의 입찰보증금은 최종낙찰자 발표일부터 환불하며 입찰보증금의 예치이자는 예치일자에 관계없이 지급하지 않습니다.
6. 입찰의 무효
가. ⸢지방자치단체를 당사자로 하는 계약에 관한 법률 시행령⸥ 제39조 제4항 및 동법 시행규칙 제42조의 규정에 의하여, “온비드”의 회원약관 및 전자자산 처분시스템 입찰참가자 준수규칙에 위배한 입찰은 무효처리 합니다.
나. 예정가격 미만이거나 입찰보증금 한도액 미만으로 입찰한 경우 입찰을 무효로 합니다.
다. 개찰 결과 최고가격으로 투찰했을 경우 “낙찰 예정자”로 결정하며, “낙찰 예정자”는 별도의 입찰자 제출서류를 제출하셔야 하며, 제출기한(낙찰 예정자에게 별도 안내)까지 미제출 시에는 입찰은 무효 처리됩니다.
1) 사용·수익 사업자(낙찰예정자) 제출 서류
① 입찰 참가 신청서 1부
② 인감증명서(사용인감계 첨부) 1부
③ 청렴계약 이행 서약서 1부(서식1)
④ 근로자 권리보호 이행 서약서 1부(서식2)
⑤ 회사 소개 및 실적 증명, 운영계획안 1부 (자유 양식)
⑥ 사업자등록증. 법인등기부등본(법인인 경우) 또는 주민등록등본(개인인 경우) 1부
⑦ 국세 및 지방세 완납 증명서 각 1부
⑧ 4대보험 완납증명서 1부
2) 계약 후 제출 서류
① 이행(지급)보증보험증권 원본 1부
- 보증금액: 낙찰금액(부가가치세 포함) 30%
- 보험기간: 사용개시(허가)일로부터 사용기간 종료일 이후 60일 이상으로 설정
- 보증내용: 「서울새활용플라자 5층 레스토랑 사용·수익허가」 일반 조건 제8조
② 화재보험 증권 1부
- 전용면적에 대하여 건물화재보험(최저배상액: 3천만원 이상) 및 화재배상책임보험(최저배상액: 1억원 이상)으로 가입한 증권
- 보증기간: 사용기간 종료일 이후 60일까지
③ 영업배상책임보험 증권 1부
- 대인배상책임보험(1인당 3천만 원 이상, 1사고당 1억 원 이상)
- 대물배상책임보험(1사고당 1억 원 이상)
3) 사용개시일 전까지 계약(낙찰)자 명의의 영업신고필증 및 사업자등록증 사본을 제출하여야 하며, 미준수시 계약이 해지 될 수 있습니다.
라. 최고가 입찰을 하였으나 사용·수익허가 일반 및 특수 조건 및 업종에 부합하지 않는 경우, 입회검사를 통해 입찰 무효가 될 수 있습니다. 입회검사 시 사업자등록증 및 사용 업종, 참가자격, 운영계획안 등 확인합니다.
마. 사용·수익 사업자 제출 서류와 입회검사를 통해 입찰의 무효 및 결격 사유가 없는 경우 최종 낙찰자로 선정됩니다.
7. 입찰의 연기 또는 취소
“온비드” 전산장애로 인하여 예정된 입찰진행이 어려운 경우 입찰집행관은 입찰을 연기 또는 취소할 수 있으며, 이 경우의 공고는 “온비드” 상의 ‘입찰공고-연기공고, 취소공고’ 게재에 의합니다.
8. 계약체결 및 대금납부 방법
가. 최종 낙찰자로 결정된 이후 정당한 사유 없이 낙찰일로부터 30일 이내 계약을 체결하지 아니할 경우에는 그 낙찰을 무효로 하고 입찰보증금은 (재)서울디자인재단에 귀속되며, 부정당업자 제재 등 불이익을 받을 수 있습니다. 그 외 최종 낙찰자로 선정된 이후 입점 상담 및 서류 검토 과정에서 입찰이 무효가 될 시에는 어떠한 경우라도 입찰보증금은 반환되지 않습니다.
나. 낙찰자는 계약체결 시 보증금과 지급보증금을 현금 또는 보증보험증권으로 납부하여야 하며, 사용료는 낙찰 사용료를 기준으로 하여 연납분(12개월)을 일시에 납부하여야 합니다. 단, 2차년도부터 분할 납부를 희망할 시에는 연납분에 대한 COFIX 기준 이자를 적용하여 산정한다.
다. 낙찰자의 입찰보증금은 계약 체결 시, 계약보증금(사용료의 30%)으로 대체되고 계약보증금 잔액은 계약 체결 전까지 납부하시면 됩니다. 계약보증금을 보증보험증권으로 대체할 경우 입찰보증금은 지정한 계좌로 환급합니다.
라. 낙찰자는 계약 체결 시에 명도 시 원상회복에 대한 이행을 증명하기 위하여 서울보증보험(주)에서 발행하는 이행지급보증보험에 가입하여야 하며, 이에 대한 증빙 자료를 제출하여야 합니다.
9. 청렴계약이행 준수
본 입찰에 참가하고자 하는 자는 청렴계약 이행을 위한 입찰특별유의서 및 청렴계약특수조건을 숙지하고 입찰에 참가하여야 하며, 입찰서를 제출한 자는 청렴계약이행서약서를 제출한 것으로 간주합니다. 최종낙찰자로 선정되면 서울디자인재단 청렴계약이행 서약서를 교부받아 서명하여 계약 체결 시 제출하여야 합니다.
10. 기타사항
가. 입찰에 부치는 사항에 대하여 현장 답사 (현장 설명회 없음)를 실시하고 신청하시기 바라며, 낙찰자는 사용·수익허가 관련 관계 법규와 제반 규정, 사용·수익허가 일반 및 특수조건, 현장 상황, 관계도면 확인, 내부공사 범위 등 입찰 공고의 내용에 관련한 모든 조건을 숙지·확인하여야 하며 (재)서울디자인재단에서는 입찰자가 숙지·확인하지 못한 사항에 대하여 일체의 책임을 지지 않습니다.
나. 제출된 서류는 일체 반환되지 않으며, 관련 서류 미제출로 인한 책임은 제출자에게 있습니다.
다. 입찰 조건, 사용·수익허가 조건‧조항 및 일정은 일부 변경될 수 있으며, 변경사항에 대하여는 “온비드”를 통하여 사전 공지합니다.
라. 낙찰자는 타인에게 동 권리를 양도‧양수‧전대할 수 없으며, 이를 위반 시 사용·수익허가를 취소할 수 있습니다.
마. 낙찰자는 향후 사용·수익허가 해지 사유 발생 시, 사용인이 설치한 시설물 등의 명도 및 원상회복과 권리금, 유익비, 필요비, 영업비 등을 청구하지 않는다는 내용의 제소전 화해조서를 체결해야 합니다.
바. 계약 종료 및 해지 시 원상복구는 서울디자인재단 원상복구 기준을 따릅니다.
사. 입찰공고, 입찰 결과, 낙찰자 결정 등 문의 사항은 아래 안내를 참고 바랍니다.
1) 한국자산관리공사 전자자산처분시스템 “온비드” 시스템 이용 문의
- 홈페이지(http://www.onbid.co.kr), 온비드 콜센터(1588-5321)
2) 입찰에 관한 진행사항 안내
- 입찰서 제출여부 : 인터넷 입찰창/나의 입찰 물건/입찰진행중/입찰상세정보
- 입찰결과 : 인터넷 입찰창/나의 온비드/입찰내역
3) 입찰에 관한 사항 문의
- (재)서울디자인재단 서울새활용플라자 윤여상 책임(02-2153-0428)
위와 같이 공고합니다.
2023년 4월 5일
(재)서울디자인재단
<서울시 핫라인, 甲의 부당행위 신고센터 운영 안내> 서울시는 직원이 입찰 및 계약을 진행하는 과정에서 행사하는 부당행위를 근절하기 위해 아래와 같이 「서울시 핫라인 甲의 부당행위 신고센터」를 운영하고 있으니 적극 활용하여 주시기 바랍니다. 접수부서 : 서울특별시 감사담당관 신고방법 : 온라인 접수 - 서울시 전자민원 응답소 (http://eungdapso.seoul.go.kr) (※ 신고자의 인적사항 등은 감사관 외에는 철저히 비공개 처리됩니다.) |
서울새활용플라자 홈페이지에 게시된 이메일 주소가 전자우편 수집
프로그램이나 그 밖의 기술적 장치를 이용하여 무단으로 수집되는 것을 거부하여
이를 위반 시 정보통신망법에 의해 형사처벌됨을 유념하시기 바랍니다.